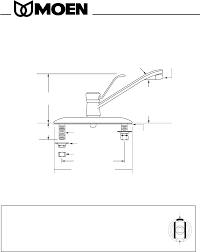
The instructions for installing a Moen single-handle kitchen faucet, as with any faucet, will vary slightly based on the particular model. In this example, you'll see how to remove an old faucet and install a new Moen Harlon series faucet, but the installation procedure will be similar for virtually all... Moen Extensa Kitchen Faucet. There is more than 1 version of this model. Extensa Lifetime limited warranty against leaks, drips and to the original consumer purchaser 5 year warranty if used in commercial installations defects NOTE: DESIGNED TO INSTALL THRU 1 OR 3 HOLES 1-1/2"... For single hole installation option,
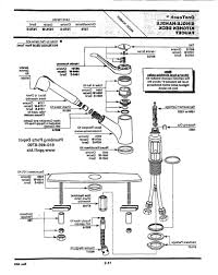
Source: faucetpost.com How To Remove Moen Bathroom Faucet Handle: No More Leaks Faucetpost Source: schillings.com Moen Paterson Kitchen Faucet Spot Resist Stainless S72003Srs Schillings Source: youtube.com Do It Yourself Kitchen Faucet Installation By Moen Youtube Source: isthefestivebakeoutyet.com Moen Kitchen Faucets Repair Instructions Moen Spout O Ring Kit Is The Festive Bake Outyet From "Moen Kitchen Faucets Repair Instructions" Pictures Source: mail.ninjadoexcel.com.br Moen 6100 User Guide Source: overstock.com Moen 7165 Align Single Handle Kitchen Faucet With Side Spray Overstock 17032361 Source: bobvila.com The Best Kitchen Faucet Options For Homeowners Bob Vila Source: moen.com Moen 1225 Cartridge Removal And Installation Guide For A One Handle Bathroom Faucet Source: m.youtube.com How To Install A Kitchen Faucet Step By Step Youtube Source: decorplanet.com Moen 100008 Monticello Mounting Hardware Kit For Cathedral Single Handle Kitchen Faucet Source: pinterest.com Moen 7600 Kitchen Faucet Repair Diagram Homipet Moen Kitchen Faucet, Kitchen Faucet Repair, Kitchen Faucet Parts Source: youtube.com How To Install A Kitchen Faucet (Removal & Replace) Installation Youtube Source: postcardsfromtheridge.com Moen Brantford Kitchen Faucet Installation And Review Postcards From The Ridge Source: decorplanet.com Moen 40088 Mounting Hardware Kit For Capstone Pull Out Kitchen Faucet Source: prettyprovidence.com How To Install A Kitchen Faucet Step By Step Tutorial Source: pinterest.com Moen 7400 Repair Homipet Kitchen Faucet Repair, Faucet Repair, Kitchen Faucet Source: clubhousebarberini.com Moen Bathroom Faucet Drain Installation Instructions Image Of Bathroom And Closet Source: nl.pinterest.com Kitchen Faucet Installation Kitchen Remodeling Kitchen Sink Brought Moen Incorporated Opinions Clean Kitchen Sink, Kitchen Faucet, Sink Faucets Source: mans.io Moen 87350Esrs Pull Down Faucets Download Instruction Manual Pdf Source: kbauthority.com Moen 87794Srs Nellis Spot Resist Stainless One Handle Pulldown Kitchen Faucet Source: m.youtube.com Installing A Pullout Kitchen Faucet Moen Guided Installations Youtube Source: ferguson.com Moen Camerist Single Handle Kitchen Faucet With Side Spray For 1 Or 2 Hole Installation In Polished Chrome 7840 Ferguson Source: diynetwork.com How To Install A Single Handle Kitchen Faucet How Tos Diy Source: everydayshortcuts.com Diy Moen Kitchen Sink & Faucet Install Everyday Shortcuts Source: grainger.com Moen Stainless Steel, Gooseneck, Kitchen Sink Faucet, Manual Faucet Activation, 1.5 Gpm 52Jm72 7594Srs Grainger Source: diynetwork.com How To Install A Single Handle Kitchen Faucet How Tos Diy Source: onme18.blogspot.com Kitchen Faucets: Moen Kitchen Faucet Parts Handle Source: manualshelf.com Moen Chateau 1 Handle Kitchen Faucet In Chrome : Instructions / Assembly : Page 2 Source: terrylove.com Moen Faucet Removal Terry Love Plumbing Advice & Remodel Diy & Professional Forum Source: familyhandyman.com How To Fix A Leaky Faucet (Diy) Family Handyman Source: kitchensity.com How To Tighten A Loose Moen Single Handle Kitchen Faucet? 3 Amazing Steps Source: kitchenfaucetblog.com Moen Single Handle Kitchen Faucet Repair Diagram Source: target.com Moen S72101 Weymouth Low Arc Kitchen Faucet With Side Spray Brushed Gold : Target Source: menards.com Moen Adler One Handle Kitchen Faucet At Menards Source: manualzz.com Moen 87042Srs Installation Guide, User Manual Source: menards.com Moen Morado One Handle Pull Down High Arc Kitchen Faucet With Powerboost At Menards Source: moen.com Moen Frequently Asked Questions (Faqs) Moen Source: homedepot.com Moen Chateau 2 Handle Low Arc Standard Kitchen Faucet With Side Sprayer On Deck And Duralock Installation In Chrome 7910 The Home Depot Source: the-promise-of-a-rainbow.blogspot.com My Home Design: 19 Lovely Moen Kitchen Faucet Installation Source: youtube.com How To Install A Moen Kitchen Faucet With Side Sprayer Youtube Source: thespruce.com How To Install A Moen Kitchen Faucet Source: the-promise-of-a-rainbow.blogspot.com My Home Design: 19 Lovely Moen Kitchen Faucet Installation Source: everydayshortcuts.com Diy Moen Kitchen Sink & Faucet Install Everyday Shortcuts Source: manualzz.com Moen S72101Srs Installation Guide Manualzz Source: majhofftakesawife.com Moen Walden Kitchen Faucet Install, Review, And A Moen Giveaway! Major Hoff Takes A Wife : Family Recipes & Travel Inspiration Source: ereplacementparts.com Mounting Hardware [93959] For Moen Plumbings Ereplacement Parts Source: pinterest.ph Awesome Awesome Moen Kitchen Faucet Installation 37 With Additional Home Decoration Ideas With Moen Kitchen Fa Faucet Parts, Kitchen Faucet Repair, Faucet Repair Source: pmmag.com Moen Quick Connect Installation System 2014 04 22 Plumbing And Mechanical Source: kitchenfaucetblog.com Moen Single Handle Kitchen Faucet Repair Diagram Source: thespruce.com How To Install A Moen Kitchen Faucet Source: nerve.xaem.mohammedshrine.org Cr_7500] Moen 7400 Kitchen Faucet Repair Diagram Website Of Yunerisk Download Diagram Source: pinterest.com American Standard Kitchen Faucet Troubleshooting Repair Guide Repair Moen Kitchen Faucet Great Price Cheap M Kitchen Faucet, Faucet Repair, Kitchen Faucet Repair Source: moen.com 1 Single Handle Pulldown Kitchen Faucet Installation Instructions Source: vision.myddns-flir.com Installing A Moen Valve. Moen 2520 Monticello Positemp 1 2 Inch Cc Valve Single Handle Tub. Moen 970Bn Brushed Nickel Thermostatic Shower System With Rain Shower. Moen Kitchen Faucet Installation Organize And Source: keepingitsimplecrafts.com How To Remove And Install A Kitchen Moen Faucet Keeping It Simple Source: manualzz.com Moen 87506Srs Noell Single Handle Standard Kitchen Faucet With Side Sprayer In Spot Resist Stainless Specification Manualzz Source: grainger.com Moen Commercial Chrome, Low Arc, Kitchen Sink Faucet, Manual Faucet Activation, 1.5 Gpm 40D687 8713 Grainger Source: homedepot.com Moen Adler Single Handle Low Arc Standard Kitchen Faucet With Side Sprayer In Chrome 87202 The Home Depot Source: thespruce.com How To Install A Moen Kitchen Faucet Source: ereplacementparts.com Mounting Hardware [146927] For Moen Plumbings Ereplacement Parts Source: clubhousebarberini.com Moen Bathroom Faucet Drain Installation Instructions Image Of Bathroom And Closet Source: wtsenates.info Kfis43 Ideas Here Kitchen Faucet Installation Scheme Collection #6098 Source: manualshelf.com Moen 8700 : Kitchen Deck Faucets Installation Instructions 7300, 8700 Source: homedepot.com How To Install A Kitchen Faucet The Home Depot Source: mans.io Moen Ca87011Srs Pull Down Faucets Download Instruction Manual Pdf Source: homedepot.com Moen Banbury Single Handle Pull Out Sprayer Kitchen Faucet With Power Clean In Spot Resist Stainless 87017Srs The Home Depot Source: mybathkitchen.com How To Tighten A Loose Moen Single Handle Kitchen Faucet Source: m.youtube.com Installing A Pulldown Or Pullout Faucet With Reflex Moen Guided Installations Youtube Source: manualslib.com Moen One Handle Kitchen Faucet Installation Manual Pdf Download Manualslib Source: americanizedplumbing.com Moen Kitchen Faucet Install Americanized Plumbingamericanized Plumbing And Heating Source: jeffsreviews.com Moen Kitchen Faucet Haysfield Jeffs Reviews Source: ebay.com Moen Edgestone Quick Install One Handle Pulldown Kitchen Faucet/Spout 46201Csl Ebay Source: kitchenfaucetblog.com Moen Single Handle Kitchen Faucet Repair Diagram Source: diynetwork.com How To Install A Single Handle Kitchen Faucet How Tos Diy Source: terrylove.com Replacing/Installing Moen Renzo Kitchen Faucet Terry Love Plumbing Advice & Remodel Diy & Professional Forum Source: manualzz.com Moen 87114Srs Milton Single Handle Pull Down Sprayer Kitchen Faucet With Reflex And Power Clean Attachments In Spot Resist Stainless Installation Guide Manualzz Source: stonehavenlife.com Kitchen Faucet Installation Is Easy Stonehaven Life Source: diynetwork.com How To Install A Single Handle Kitchen Faucet How Tos Diy Source: diynetwork.com How To Install A Single Handle Kitchen Faucet How Tos Diy Source: pinterest.com Delta Porter Shower Faucet Installation Instructions Delta Shower Faucet Instal#Delta #Faucet #Instal #Installat Shower Faucet, Black Faucet Bathroom, Faucet Source: truevalue.com Caris High Arc Kitchen Faucet, Pull Down Spray & Soap Dispenser, Single Handle, Stainless Steel True Value Source: schillings.com Moen Paterson Kitchen Faucet Matte Black S72003Bl Schillings Source: youtube.com Moen Circa 2008 Kitchen Faucet Removal Youtube Source: nerve.xaem.mohammedshrine.org Cr_7500] Moen 7400 Kitchen Faucet Repair Diagram Website Of Yunerisk Download Diagram
suggestion: moen kitchen faucet installation
moen kitchen faucet installation tool
moen kitchen faucet installation instructions
moen kitchen faucet installation video
moen kitchen faucet installation youtube
moen kitchen faucet installation directions
moen kitchen faucet manual
moen kitchen faucet mounting hardware
moen kitchen faucet mounting nut size
moen kitchen faucet assembly diagram
0 Response to "moen kitchen faucet installation"
Posting Komentar